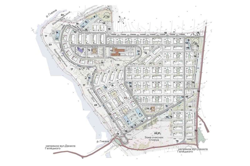
Неподалік Збаража на Тернопільщині збудують модульне містечко для переселенців. Згідно з проєктом, у поселенні зможуть жити понад 5,5 тисяч людей.
Про це повідомляє zaxid.net.
Як зазначають у студії дизайну Balbelk Bureau, містечко матиме розвинену інфраструктуру й передбачатиме робочі місця для переселенців. На території працюватимуть магазини, заклади харчування, дитсадки й початкова школа. Біля озера облаштують зону для відпочинку.

Проєкт реалізують спільно з ініціативою «Made in Ukraine». Засновниця організації Юлія Савостіна зазначила, що для містечка вже знайшли відповідну ділянку на 40 га біля озера.
«Зробили кадастрову зйомку 40 га із погодженням в інстанціях експлуатуючих наземні та підземні комунікації, всі геологічні вишукування, юридично відпрацювали виділення землі, зробили розбивку території. І, як я вже написала, погодили архітектурно-проєктувалині роботи. Переходимо до прокладки комунікацій, пошуку фінансових партнерів, партнерів з озеленення і оформлення території», – зазначила вона.
Зазначимо, у березні Balbek Bureau презентувала проєкт тимчасових будинків для переселенців. Згідно з концептом, поселення складатиметься з модульних приміщень, площею 3,3 на 6,6 м2. Модулі поділені на чотири типи: житлові, громадські, кухонні та санітарні.

Нагадаємо, Україна розпочне етапне будівництво європейської колії, щоб з’єднати українську залізницю з європейською.
Також ми повідомляли, що в Добротвірський громаді Львівської області побудували асфальтобетонний завод потужністю 120 тонн асфальту на годину.
Фото: zaxid.net.