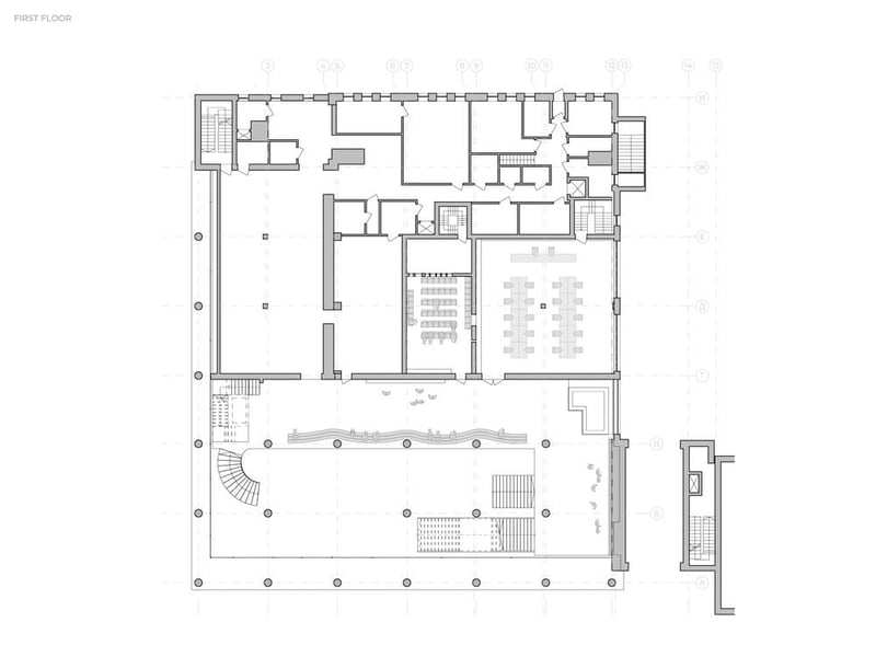
Студія Balbek Bureau показала проєкт реновації Будинку кіно. Із запитом переосмислити простір і дати йому нове дихання до майстерні звернулася Спілка кінематографістів України.
Про це повідомили в архітектурній студії Balbek Bureau.
Перед розробкою проєкту архітектори оцінили стан приміщень усіх чотирьох поверхів. «Між великими подіями — кінофестивалями, концертами та стендап-шоу — простір має продовжувати активне життя», — зазначили в бюро.
Команда визначила проміжні цілі проєкту:
- оновити наявні простори будівлі;
- розробити концепцію нового інтер’єру, зокрема оновити матеріали й освітлити меблі;
- застосувати стандарти доступності інклюзивних середовищ.
Читайте також: «Укрзалізниця» запускає поїзд-галерею, що подорожуватиме Україною (ФОТО)
Команда Balbek Bureau запропонувала розділити сценарії використання приміщень Будинку кіно на зимовий (із залученням лише внутрішніх зал і кімнат) та літній (з балконами й дахом). Мультифункціональності простору сприятиме й класифікація сценаріїв на постійні та епізодичні — це дозволить розробити графік подій та урізноманітнити життя будівлі.




Нагадуємо, що на Волині відновили вишиванку 19 століття: завдяки їй у Канаді збиратимуть гроші для ЗСУ (ФОТО).
Фото: сайт студії Balbek Bureau